
Project
Johannes Verhulststraat 69-71
Een impressie
Planning
Projectstatus: Bouw gestart
Start bouw
april 2025
Start Verkoop
juli 2026
Oplevering vanaf
november 2026
Start bouw
april 2025
Start Verkoop
juli 2026
Oplevering vanaf
november 2026

vijf unieke appartementen
Johannes Verhulststraat, Amsterdam
Een unicum in Oud-Zuid: twee naast elkaar gelegen panden die in opdracht van Blanc Real Estate, in samenwerking met Living Real Estate en DAMSTAD, worden samengevoegd en getransformeerd tot een exclusieve woonontwikkeling. Het betreft een statig en breed opgezet pandenensemble uit de vroege twintigste eeuw, onderdeel van de oorspronkelijke stedenbouwkundige opzet van het Museumkwartier.
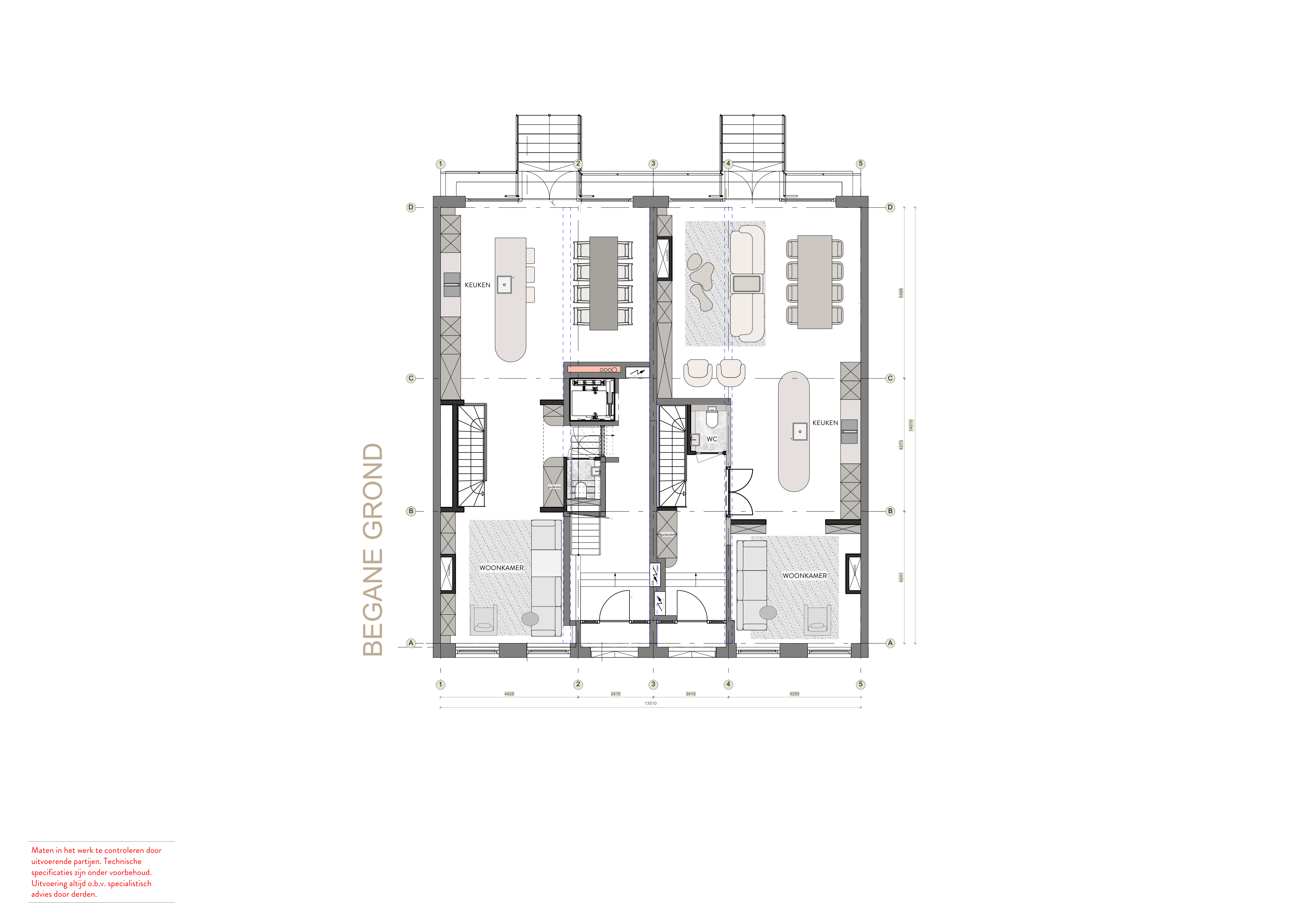
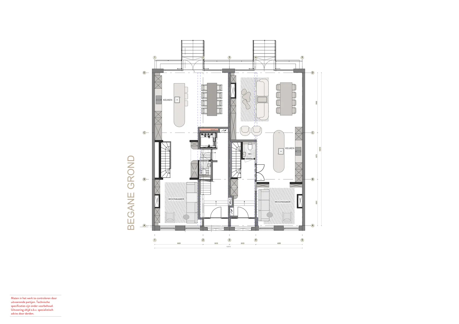
Deze bijzondere ontwikkeling omvat vijf woningen: twee royale dubbele benedenhuizen, twee ruime appartementen op één woonlaag en een penthouse. Wat dit project onderscheidt, is de horizontale samenvoeging van twee panden, waardoor per verdieping circa 165 m² aan woonoppervlak ontstaat, gecombineerd met een uitzonderlijke gevelbreedte van circa 13 tot 14 meter. In dit deel van de stad is een dergelijke breedte zeldzaam, wat resulteert in een ongekende hoeveelheid licht, ruimtelijkheid en een uitzonderlijk gevoel van ruimte en schaal.
De appartementen op één woonlaag beschikken aan de achterzijde over zonnige buitenruimtes op het zuiden (circa 1,5 x 4 meter), terwijl het penthouse is voorzien van een privé dakterras. De dubbele benedenhuizen onderscheiden zich door hun heerlijke, riante tuinen, een zeldzame luxe op deze locatie. Het gebouw wordt bovendien uitgerust met een lift, wat bijdraagt aan optimaal comfort en toegankelijkheid.

Tijdloos ontwerp met hoogwaardige afwerking
Wooncomfort van uitzonderlijk niveau
Hoewel het gebouw volledig is gestript, blijft het oorspronkelijke karakter subtiel voelbaar. Klassiek lijstwerk is opnieuw geïnterpreteerd en verfijnd toegepast op plafonds, wanden en deuren. In het interieur is gekozen voor een warm en ingetogen kleurenpalet, met zachte wit- en zandtinten, aangevuld met accenten in natuursteen en hout.
Alle appartementen zijn voorzien van op maat gemaakte keukens en badkamers. De indelingen zijn zorgvuldig ontworpen, met logische looplijnen, een doordachte lichtinval en subtiele overgangen tussen de verschillende leefruimtes. Voor elementen zoals het keukenblad, stoffering en accentkleuren zijn diverse alternatieven beschikbaar, waardoor er ruimte is voor een persoonlijke invulling.
Exclusief wonen

Benedenwoning
Johannes Verhulsstraat 69-A

Benendenwoning
Johannes Verhulsstraat 71

Eerste Verdieping
Johannes Verhulsstraat 69-B

Tweede Verdieping
Johannes Verhulsstraat 69-C
Plattegrond
Oud-Zuid
Betrokken partijen
Makelaar
Makelaar
Ontwikkelaar
Architect & Aannemer
Interesse in dit project?
Ontmoet ons verkoopteam

partner damstad | makelaar rm
Maurizio Hessels

Vastgoed adviseur
Camille Eshuis

Damstad
Evelyn Boks